8280 Chiles Industrial Avenue, Red Deer, Alberta, Canada, T4P 1L1

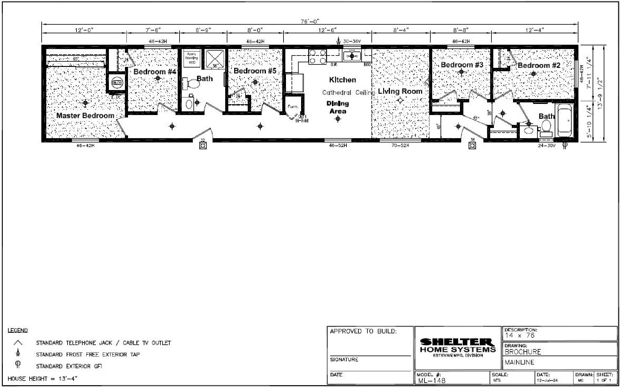
Model no. ML-148

  • Bedrooms: 5
  • Bathrooms: 2
  • Dimensions: 14′ x 76′, 1064 sq ft